Gas Shut-off Damper for Defense Application
General
EEP gastight shut-off rectangular dampers are designed for shutting and balancing air intakes and exhaust ducts.
When closed these dampers meet the requirement of air leakage class to Class 3 of EN1751:2014.
They are suitable for wall and duct mounting for both inlet and exhaust air.
The outer frame of galvanized, painted or stainless steel. The blades of galvanized, painted or stainless steel with double sheet construction. Silicone seals and maintenance free bearings and shafts.
Design

Designed for a maximum dust pressure of 5000 Pa and maximum air velocity of 15 m/s.
Temperature operation up to + 100°C with optional high temperature version operating up to + 180 °C.
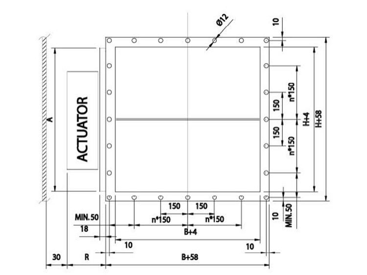
These shut-off, gas and balancing dampers meet international standards for rectangular (width B 100-1200 mm and height H 100-1600 mm, 1 mm division) ducts.
Non-standard dimensions are available on request. Standard flange width 27 mm. Flanges and drilling also available according to ISO 15138 standards. Modular construction sizes available up to 2400X3200 mm. Frame thicknesses from 3 mm to 10 mm. Standard frame thickness is 3 mm. Blades are made of two sheets, each of them being 1 mm thick (sandwich design).
Product Models
Dampers available with following actuators:
Electrical spring return actuator; standard actuators being 24 VAC/DC or 230 VAC or 120 VAC. Depending on the choice of actuator, the actuator might contain built-in open closed limit switches. A wide range of Ex actuators available, including a one second closing time function as an option (for limited sizes).
Pneumatic rotating actuator
Manual handle
General Drawing
Accessories
The wall frames can be fitted with particle filters and shields for protection against weather and shrapnel.
Dimensions and Weights (without actuator Kg)
Product Types
- (S)=Shape of Connection
- (A) Circular on one side
- (C ) Circular on two sides
- (R) Rectangular
- (W)=Width
- 100-1200
- (H)=Height
- 100-1600
- (D)=Diameter
- 100-1250
- (EX)=Atex Certification
- (NA) No
- (X1) ATEX Certified damper [please fill]
- (SF)=Flange Option
- (H0) Eurovent flange in circular connections
- (H1) Eurovent flange + loose flange in circular connections
- (HA) Eurovent flanges
- (HB) Eurovent flanges + counter flanges (2 sides)
- (HC) Eurovent flanges + counter flange (1 side)
- (N0) ISO15138 flange drilling in circular connection
- (N1) ISO15138 flange drilling + Loose flange in circular connection
- (NA) Circular connections without flanges
- (NR) ISO15138 flange drilling
- (MA)=Material Blades
- (AS) Stainless steel 1 mm EN1.4404
- (CS) Carbon steel 1 mm
- (LS) Stainless steel 1 mm EN1.4432
- (SS) Stainless steel 1 mm EN1.4301
- (FM)=Frame Material
- (A3) Stainless steel 3 mm EN1.4404
- (A5) Stainless steel 5 mm EN1.4404
- (C3) Carbon steel 3 mm
- (C5) Carbon steel 5 mm
- (L3) Stainless steel 3 mm EN1.4432
- (L5) Stainless steel 5 mm EN1.4432
- (S3) Stainless steel 3 mm EN1.4301
- (S5) Stainless steel 5 mm EN1.4301
- (FI)=Finishing
- (HG) Hot galvanized
- (NA) Acid treatment
- (PN) Standard painting grey RAL7001
- (PX) Special Painting C5-M ISO12944
- (BR)=Bearing Material
- (BR) Bronze JN5
- (MS) Brass
- (AS) Stainless steel EN1.4404
Disclaimer
NB: All the information provided within this datasheet is for reference only. Product specifications are subject to change without notice.